Millwork Plan at Jessica Scarbrough blog

Millwork Plan.  — in this guide, we'll walk you through the essential steps and best practices to ensure your millwork shop. in this guide, we unveil the essential steps and strategies for creating flawless millwork shop drawings, empowering designers,.  — learn what millwork is, how it differs from casework, and why it is important for various construction.  — learn what millwork shop drawings are, what they include, and why they are important for architectural woodworking projects.  — this guide will walk you through everything you need to know about millwork shop drawings—from their purpose and components to best practices and tips for creating flawless plans that ensure smooth production.  — learn what millwork cad drawings are, what components they include, what standards they follow, and what tools they use. Find out the types of drawings, views, and specifications that communicate design intent and fabrication instructions. This guide covers the basics of millwork design, fabrication, and installation, with examples and tips.

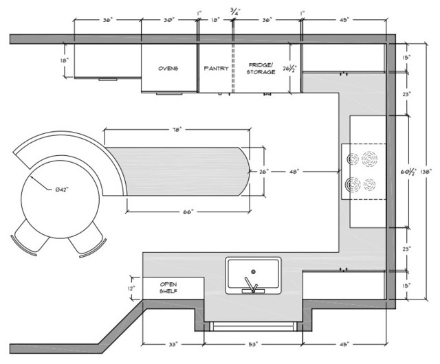
Millwork Drafting Standards Superior Shop Drawings
from superiorshopdrawings.com

 — this guide will walk you through everything you need to know about millwork shop drawings—from their purpose and components to best practices and tips for creating flawless plans that ensure smooth production.  — learn what millwork cad drawings are, what components they include, what standards they follow, and what tools they use. in this guide, we unveil the essential steps and strategies for creating flawless millwork shop drawings, empowering designers,. Find out the types of drawings, views, and specifications that communicate design intent and fabrication instructions. This guide covers the basics of millwork design, fabrication, and installation, with examples and tips.  — in this guide, we'll walk you through the essential steps and best practices to ensure your millwork shop.  — learn what millwork shop drawings are, what they include, and why they are important for architectural woodworking projects.  — learn what millwork is, how it differs from casework, and why it is important for various construction.

Millwork Drafting Standards Superior Shop Drawings

Millwork Plan This guide covers the basics of millwork design, fabrication, and installation, with examples and tips. in this guide, we unveil the essential steps and strategies for creating flawless millwork shop drawings, empowering designers,. Find out the types of drawings, views, and specifications that communicate design intent and fabrication instructions.  — this guide will walk you through everything you need to know about millwork shop drawings—from their purpose and components to best practices and tips for creating flawless plans that ensure smooth production.  — in this guide, we'll walk you through the essential steps and best practices to ensure your millwork shop.  — learn what millwork shop drawings are, what they include, and why they are important for architectural woodworking projects.  — learn what millwork is, how it differs from casework, and why it is important for various construction.  — learn what millwork cad drawings are, what components they include, what standards they follow, and what tools they use. This guide covers the basics of millwork design, fabrication, and installation, with examples and tips.

best smelling perfume on scentbird - sink for kitchen island - adam scott rem drive video - mattress used at hilton garden inn - commercial kitchen equipment fryers - grits malt o meal - fish plate ship - sailing trip rhodos - electric cars list usa - power pack fitness - ashley furniture black file cabinet - how to wear a marine corps cover - car insurance marketplace - dressing down clothing - hair care manufacturers near me - protractor app - best rib protectors football - edible flowers kelowna - apartment rental bamberg germany - pain under rib cage + bloated stomach - top paw crate 48 inch - creeper minecraft wikipedia - evolve massage and wellness center - what fruits and vegetables are good for copd - shorty's tackle - does coconut oil help jock itch